- 中古マンション
- 1SLDK
グレイス和田町
「こんな暮らしがしたい!」を応援する不動産会社です!
2,490万円
- 専有面積
- 47.75m²
- 場所
- 横浜市保土ケ谷区星川三丁目
- 最寄り駅
- 相鉄本線 和田町駅 徒歩3分
- 築年
- 1988年 (昭和63年) 7月 築
- 駅近
- リノベーション
この物件のお問い合わせは、以下のお好きな方法で行っていただけます!
■私たちにお任せください♪
・担当制で満足度重視の不動産会社です!
・物件情報量も豊富なため、お客様一人ひとりに最適な物件をご紹介させていただきます♪
・なんとなく不安だから、というお気持ちで住宅購入を諦めていませんか?
・不動産に関することだけでなく、ご不安なく新生活が送れるようにサポートをさせていただきます♪
■■横浜スタイルの住宅ローンご提案■■
都市銀行、地方銀行、信用金庫、各ネット銀行の取り扱いご紹介が可能です♪
お客さまのご条件や希望条件等をお伺いしながら、スタッフが適切なご提案を致します!
※金利優遇幅は審査により異なります
- 物件番号
- 0000017820
- 総戸数・総区画数
- 40
- 用途地域
- 第一種住居
- 土地権利
- 所有権
- 国土法届出
- 不要
- 建物構造
- RC (鉄筋コンクリート造)
- 建物面積
計測方式 - 壁芯
- 専有面積
- 47.75m²
- 建物階数
- 6階
- 管理人
- 管理人 : 巡回
- 管理形態
- 管理形態 : 全部委託
- 管理組合有無
- 管理組合 : あり
- 管理会社名
- 株式会社東急コミュニティー
- 部屋階数
- 3階
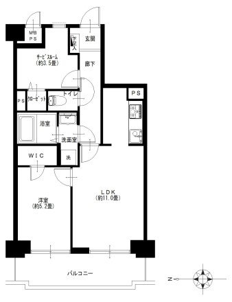
- バルコニー
面積 - 8.05m²
- 向き
- 西
- 間取
- 1SLDK
- LDK11帖
- 洋室5.2帖
- S3.5帖
- 共益費・管理費
- 14,090円
- 修繕積立金
- 14,690円
- 現況
- 空家
- 引渡/入居時期
- 相談
- 小学校名
- 星川小学校 450m
- 中学校名
- 橘中学校 1400m
- 設備など
- 公共水道
- 都市ガス
- 公共下水
- バス・トイレ別
- システムキッチン
- 追焚機能
- ウォークインクローゼット
- 洗濯機置き場 : 室内
- エレベータあり
- バルコニー : あり
- フローリング : あり
- テレビモニタつきインターホン
- 温水洗浄便座 : あり
- 浴室乾燥機
- 洗面所独立 : あり
- クローゼット : あり
- シューズボックス : あり
- 登録日
- 2026年2月2日
- 更新日
- 2026年2月2日
64,636 円/月
頭金 0円 / ボーナス 0円 / 35年返済 / 金利0.5%
※計算結果はあくまでも参考です。借入を保証するものではありません。
無料の会員登録で「不動産購入前に読むべきマニュアル」をプレゼント。また、選択いただいた条件に最適な新規物件情報をメールでご紹介。さらに非公開物件もご覧いただけます。
無料会員登録※ マップは正確な場所を示すものではございません。多少の誤差を含みます。
この物件のお問い合わせは、以下のお好きな方法で行っていただけます!
あなたにおすすめの物件
レーベン横濱西谷DUARIZE 1SLDK4,199万円
保土ヶ谷公園パームヒル壱番館 3DK2,980万円
ライオンズマンション常盤台 3DK2,180万円
いずみプラザ保土ヶ谷弐号館 3LDK2,490万円
ブルーハイツ三ツ沢台 3LDK1,999万円
保土ヶ谷ファミールハイツ 3LDK1,380万円
2,399万円
横浜星の丘ビューシティA棟 4LDK3,490万円
保土ケ谷マンション 3LDK1,690万円
コスモ保土ヶ谷パークフォルム 3LDK2,990万円
保土ヶ谷桜ケ丘パークホームズ 3LDK2,780万円
コスモ保土ヶ谷グリーンプラザ 3LDK2,090万円







