- 土地
佐原3丁目土地A6区画
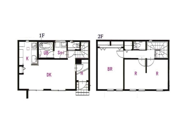
長期優良住宅認定を取得した、耐久性と省エネ性に優れた安心の住まい♪
1,280万円
- 土地
- 110.16m²
- 用途地域
- 第一種住居
- 場所
- 横須賀市佐原三丁目
- 最寄り駅
- 京急久里浜線 北久里浜駅 徒歩25分
- 買物便利
- インター至近
この物件のお問い合わせは、以下のお好きな方法で行っていただけます!
〜〜 物件のPoint 〜〜
・自然素材と高断熱仕様を取り入れ、家族の健康に配慮した快適な住宅
・南からの光がたっぷり入る、日当たりの良い住環境
・主要道路や公共交通へのアクセスが良く、通勤や外出に便利な立地
・スーパー・病院・学校など生活に必要な施設が揃い、毎日の暮らしが快適な周辺環境
ご興味ございましたら下記「資料請求・お問い合わせ」欄に必要事項記入の上、お問い合わせください。
担当者より、ご希望に合わせて資料送付や、ご内覧等手配等させていただきます。
その他お住まいに関するご相談も承りますので、お気兼ねなくご相談ください。
- 物件番号
- 0000017786
- 総戸数・総区画数
- 3
- 空き物件数
- 3
- 地目
- 宅地
- 用途地域
- 第一種住居
- 都市計画
- 市街化区域
- 区画面積
- 110.16m²
- セットバック
- なし
- 建ぺい率 /
容積率 - 60% / 200%
- 接道状況
- 一方
- 北東側 6m の私道に接道
- 土地権利
- 所有権
- 国土法届出
- 不要
- 法令上の制限
- 準防火地域
- 引渡/入居時期
- 期日指定
- 引渡予定日
- 2026年4月上旬
- 小学校名
- 大矢部小学校 1000m
- 中学校名
- 久里浜中学校 3000m
- スーパー距離
- 700m
- 設備など
- 建築条件 : あり
- 登録日
- 2026年1月30日
- 更新日
- 2026年2月5日
33,226 円/月
頭金 0円 / ボーナス 0円 / 35年返済 / 金利0.5%
※計算結果はあくまでも参考です。借入を保証するものではありません。
無料の会員登録で「不動産購入前に読むべきマニュアル」をプレゼント。また、選択いただいた条件に最適な新規物件情報をメールでご紹介。さらに非公開物件もご覧いただけます。
無料会員登録この物件のお問い合わせは、以下のお好きな方法で行っていただけます!
















佐原3丁目土地A4区画
池田町5丁目土地
久里浜7丁目土地
佐原3丁目土地A5区画