- 中古戸建
- 3SLDK
馬場5丁目中古戸建
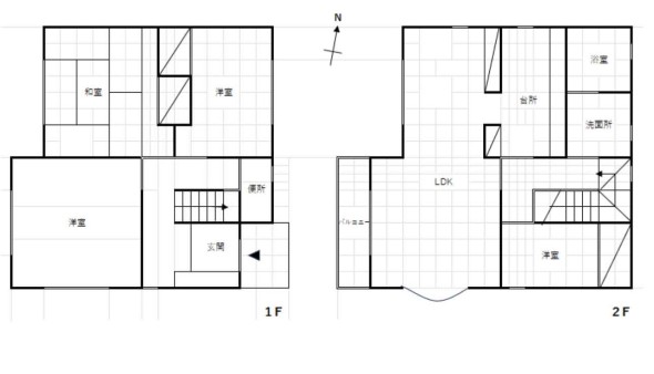
3SLDKの間取りで居室と収納をバランス良く確保!
3,250万円
- 土地
- 143.31m²
- 建物
- 114.79m²
- 種別
- 鉄骨造2階建
- 場所
- 横浜市鶴見区馬場五丁目
- 最寄り駅
- 東急東横線 菊名駅 バス14分[馬場町] 徒歩4分
- 京浜東北・根岸線 鶴見駅 バス9分[馬場町] 徒歩4分
- 築年
- 1991年 (平成3年) 4月 築
この物件のお問い合わせは、以下のお好きな方法で行っていただけます!
〜〜 物件のPoint 〜〜
■高台立地ならではの眺望と日当たりの良さが魅力
■地下車庫付きで大切な車を雨風から守れる設計
■高台のため周囲の視線が気になりにくい立地
■室内は約7年前にリフォーム済みで状態良好
■鉄骨造・地下RC造の堅牢な構造で安心感あり
ご興味ございましたら下記「資料請求・お問い合わせ」欄に必要事項記入の上、お問い合わせください。
担当者より、ご希望に合わせて資料送付や、ご内覧等手配等させていただきます。
その他お住まいに関するご相談も承りますので、お気兼ねなくご相談ください。
- 物件番号
- 0000017749
- 地目
- 宅地
- 用途地域
- 第一種低層住居専用
- 都市計画
- 市街化区域
- 区画面積
- 143.31m²
- セットバック
- なし
- 建ぺい率 /
容積率 - 80% / 100%
- 東側 4m の私道に接道
- 土地権利
- 所有権
- 国土法届出
- 不要
- 法令上の制限
- 崖下につき建築制限/崖上につき建築制限/宅地造成工事規制区域/高度地区/準防火地域/日影制限/敷地面積最低限度/高さ最高限度/緑化地域/22条区域/私道堀削、使用承諾有
- 建物構造
- 鉄骨造
- 建物面積
- 114.79m²
- 建物階数
- 2階
- 間取
- 3SLDK
- 駐車場区分
- 空きあり
- 駐車場空き台数
- 1
- 現況
- 空家
- 引渡/入居時期
- 相談
- 小学校名
- 旭小学校 700m
- 中学校名
- 寺尾中学校 1600m
- コンビニ距離
- 800m
- スーパー距離
- 900m
- 設備など
- 公共水道
- 都市ガス
- 公共下水
- バス・トイレ別
- 登録日
- 2026年1月23日
- 更新日
- 2026年1月23日
84,365 円/月
頭金 0円 / ボーナス 0円 / 35年返済 / 金利0.5%
※計算結果はあくまでも参考です。借入を保証するものではありません。
無料の会員登録で「不動産購入前に読むべきマニュアル」をプレゼント。また、選択いただいた条件に最適な新規物件情報をメールでご紹介。さらに非公開物件もご覧いただけます。
無料会員登録この物件のお問い合わせは、以下のお好きな方法で行っていただけます!












上末吉1丁目中古戸建 4LDK
獅子ヶ谷1丁目中古戸建 3LDK
馬場2丁目中古戸建 4LDK
東寺尾東台中古戸建 4LDK
東寺尾東台中古戸建 2SLDK
北寺尾5丁目中古戸建 4LDK
上の宮2丁目中古戸建 4SLDK
市場西中町中古戸建 3SLDK
東寺尾2丁目中古戸建 2SLDK
大東町中古戸建 3LDK
北寺尾2丁目中古戸建 4LDK
小野町中古戸建 5LDK