- 新築戸建
- 4LDK
東希望が丘新築戸建1号棟
三ツ境駅徒歩圏×4LDK×2台駐車可!開放感あふれる吹き抜け玄関の家!
6,690万円
- 土地
- 179.76m²
- 建物
- 99.77m²
- 種別
- 木造2階建
- 場所
- 横浜市旭区東希望が丘
- 最寄り駅
- 相鉄本線 三ツ境駅 徒歩13分
- 相鉄本線 希望ヶ丘駅 徒歩15分
- 築年
- 2026年 (令和8年) 1月 築
- 学校至近
- 駐車場2台以上
- オススメ!
この物件のお問い合わせは、以下のお好きな方法で行っていただけます!
〜〜 物件のPoint 〜〜
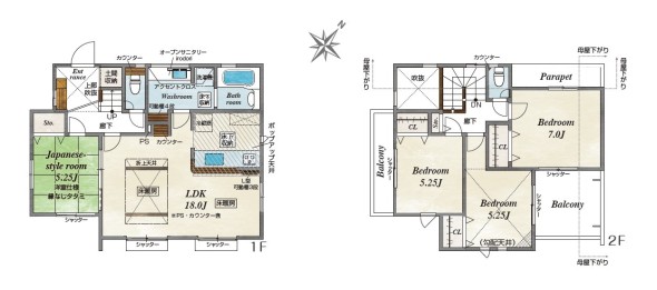
■LDK18帖!折上天井がもたらす開放的なリビング!
■水回りを1箇所にまとめた家事動線の良い間取り!
■食洗器やリビング床暖房等、室内設備充実!
■各居室にはしっかりサイズの収納スペース!玄関は土間収納!
■約54坪のゆとりある敷地!2台駐車可能!(車種による)
■小・中学校徒歩6分圏内でお子様の通学も安心の距離!
ご興味ございましたら下記「資料請求・お問い合わせ」欄に必要事項記入の上、お問い合わせください。
担当者より、ご希望に合わせて資料送付や、ご内覧等手配等させていただきます。
その他お住まいに関するご相談も承りますので、お気兼ねなくご相談ください。
- 物件番号
- 0000017542
- 総戸数・総区画数
- 1
- 空き物件数
- 1
- 地目
- 宅地
- 用途地域
- 第一種低層住居専用
- 都市計画
- 市街化区域
- 区画面積
- 179.76m²
- セットバック
- なし
- 建ぺい率 /
容積率 - 50% / 100%
- 接道状況
- 一方
- 南西側 4m の公道に接道
- 土地権利
- 所有権
- 国土法届出
- 不要
- 法令上の制限
- 崖下につき建築制限/宅地造成工事規制区域/高度地区/準防火地域/日影制限/敷地内段差/敷地面積最低限度/高さ最高限度/緑化地域、建築基準法第22条区域
- 建物構造
- 木造
- 建物面積
- 99.77m²
- 建物階数
- 2階
- 間取
- 4LDK
- LDK18帖
- 和室5.2帖
- 洋室7帖
- 洋室5.2帖
- 洋室5.2帖
- 駐車場区分
- 空きあり
- 駐車場空き台数
- 1
- 現況
- 未完成
- 引渡/入居時期
- 期日指定
- 引渡予定日
- 2026年2月中旬
- 建築確認番号
- 第R07SHC118385号
- ドラッグストア距離
- 850m
- 小学校名
- 東希望が丘小学校 400m
- 中学校名
- 希望が丘中学校 450m
- スーパー距離
- 700m
- 設備など
- 公共水道
- 都市ガス
- 公共下水
- IHコンロ
- システムキッチン
- 追焚機能
- シャワー付洗面化粧台 : あり
- 床下収納 : あり
- バルコニー : あり
- フローリング : あり
- 床暖房
- テレビモニタつきインターホン
- 温水洗浄便座 : あり
- 浴室乾燥機
- 食器洗い乾燥機 : あり
- 全居室収納 : あり
- クローゼット : あり
- シューズボックス : あり
- BELS/省エネ基準適合認定建築物 : あり
- 登録日
- 2025年12月8日
- 更新日
- 2025年12月8日
173,662 円/月
頭金 0円 / ボーナス 0円 / 35年返済 / 金利0.5%
※計算結果はあくまでも参考です。借入を保証するものではありません。
無料の会員登録で「不動産購入前に読むべきマニュアル」をプレゼント。また、選択いただいた条件に最適な新規物件情報をメールでご紹介。さらに非公開物件もご覧いただけます。
無料会員登録この物件のお問い合わせは、以下のお好きな方法で行っていただけます!
























今宿2丁目新築戸建 B号棟 4LDK
今宿2丁目新築戸建 A号棟 4LDK
川井本町新築戸建A号棟 3LDK
川井本町新築戸建C号棟 2SLDK
上白根2丁目新築戸建 5LDK
中白根1丁目新築戸建 4LDK