- 中古戸建
- 4LDK
真金町2丁目中古戸建
「伊勢佐木長者町」駅平坦徒歩8分の好立地!室内一部リフォーム済み!
10,800万円
- 土地
- 85.78m²
- 建物
- 98.53m²
- 種別
- 木造2階建
- 場所
- 横浜市南区真金町二丁目
- 最寄り駅
- ブルーライン 阪東橋駅 徒歩7分
- ブルーライン 伊勢佐木長者町駅 徒歩8分
- 築年
- 1983年 (昭和58年) 4月 築
- 学校至近
- 買物便利
- 駅近
この物件のお問い合わせは、以下のお好きな方法で行っていただけます!
〜〜 物件のPoint 〜〜
■店舗・事務所など幅広く活用可能!
■収益利用や将来の建替えに適した土地です!
■全居室6帖以上のゆとりある4LDK!
■横浜橋商店街近く日々のお買い物も便利!
ご興味ございましたら下記「資料請求・お問い合わせ」欄に必要事項記入の上、お問い合わせください。
担当者より、ご希望に合わせて資料送付や、ご内覧等手配等させていただきます。
その他お住まいに関するご相談も承りますので、お気兼ねなくご相談ください。
私道負担あり
- 物件番号
- 0000017534
- 地目
- 宅地
- 用途地域
- 商業
- 都市計画
- 市街化区域
- 地勢
- 平坦
- 土地面積
計測方式 - 公簿
- 区画面積
- 85.78m²
- セットバック
- なし
- 建ぺい率 /
容積率 - 80% / 400%
- 接道状況
- 一方
- 南東側 14.5m の公道に接道 [ 間口 5.4m ]
- 土地権利
- 所有権
- 国土法届出
- 不要
- 法令上の制限
- 宅地造成工事規制区域/高度地区/防火地域/緑化地域、中央地区駐車場整備地区、築基準法第22条区域、駐車場条例の附置義務区域
- 建物構造
- 木造
- 建物面積
- 98.53m²
- 建物階数
- 2階
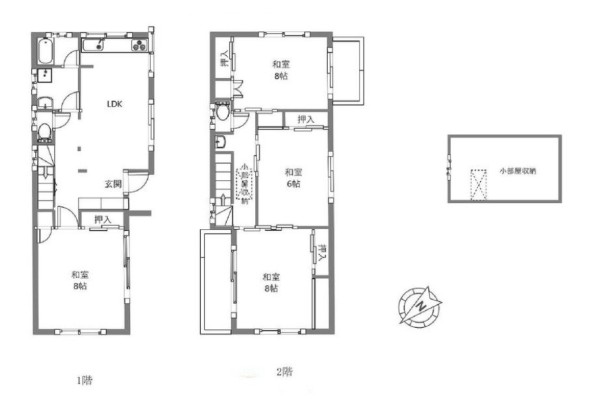
- 間取
- 4LDK
- LDK
- 和室8帖
- 和室8帖
- 和室8帖
- 和室6帖
- 駐車場区分
- 空きあり
- 駐車場空き台数
- 1
- 現況
- 空家
- 引渡/入居時期
- 相談
- 水回りリフォーム
- 2025年11月
- 洗面所
- 内装リフォーム
- 2025年11月
- 壁、天井(クロス、塗装等)
- 床(フローリング等)
- 建具(室内ドア等)
- 小学校名
- 南吉田小学校 400m
- 中学校名
- 横浜吉田中学校 800m
- 設備など
- 公共水道
- 都市ガス
- 公共下水
- 追焚機能
- 冷暖房 : エアコン
- バルコニー : あり
- テレビモニタつきインターホン
- 温水洗浄便座 : あり
- 洗面所独立 : あり
- シューズボックス : あり
- 登録日
- 2025年12月8日
- 更新日
- 2025年12月8日
280,352 円/月
頭金 0円 / ボーナス 0円 / 35年返済 / 金利0.5%
※計算結果はあくまでも参考です。借入を保証するものではありません。
無料の会員登録で「不動産購入前に読むべきマニュアル」をプレゼント。また、選択いただいた条件に最適な新規物件情報をメールでご紹介。さらに非公開物件もご覧いただけます。
無料会員登録この物件のお問い合わせは、以下のお好きな方法で行っていただけます!


















別所中里台中古戸建 4SLDK
清水ケ丘中古戸建 2SLDK
中里4丁目中古戸建 2LDK
大岡1丁目中古戸建 4LDK
永田台中古戸建 3SLDK
六ッ川1丁目中古戸建 4LDK
清水ヶ丘中古戸建 4LDK
唐沢中古戸建 3LDK
中里4丁目中古戸建 4LDK