- 中古マンション
- 3LDK
リストレジデンス上大岡ソレイユ
「上大岡」駅徒歩圏!新規内装リフォーム済み!快適設備が揃った3LDK!
4,390万円
- 専有面積
- 73.56m²
- 場所
- 横浜市港南区大久保二丁目
- 最寄り駅
- ブルーライン 上大岡駅 徒歩13分
- 京急本線 上大岡駅 徒歩13分
- 築年
- 2013年 (平成25年) 11月 築
- オススメ!
- リノベーション
- ペット可
この物件のお問い合わせは、以下のお好きな方法で行っていただけます!
〜〜 物件のPoint 〜〜
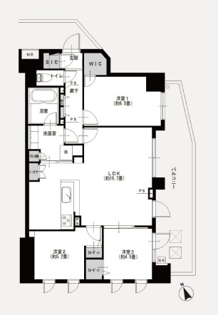
■LDK16.7帖の横長リビングは、家具の配置がしやすく家族団らんに最適!
■家事動線の良い2wayキッチン!キッチンから洗面室の移動がスムーズ!
■リビング床暖房付きで、寒い季節も快適に過ごせます!
■各居室にはしっかりサイズの収納スペース!
■大切なペットと一緒に暮らせます!(犬・猫合わせて2匹以内・細則有)
ご興味ございましたら下記「資料請求・お問い合わせ」欄に必要事項記入の上、お問い合わせください。
担当者より、ご希望に合わせて資料送付や、ご内覧等手配等させていただきます。
その他お住まいに関するご相談も承りますので、お気兼ねなくご相談ください。
駐車場:月額9000円〜10500円・駐輪場:月額200円〜400円・バイク置場:月額2000円 CATV施設利用料…210円/月 町内会費…300円/月
- 物件番号
- 0000017416
- 総戸数・総区画数
- 45
- 用途地域
- 第一種中高層住居専用
- 土地権利
- 所有権
- 国土法届出
- 不要
- 建物構造
- RC (鉄筋コンクリート造)
- 建物面積
計測方式 - 壁芯
- 専有面積
- 73.56m²
- 建物階数
- 5階
- 管理人
- 管理人 : 日勤
- 管理形態
- 管理形態 : 全部委託
- 管理組合有無
- 管理組合 : あり
- 管理会社名
- 大和ライフネクスト(株)
- 部屋階数
- 2階
- バルコニー
面積 - 17.05m²
- 向き
- 東
- 間取
- 3LDK
- LDK16.7帖
- 洋室6.5帖
- 洋室5.2帖
- 洋室4.5帖
- 共益費・管理費
- 20,600円
- 修繕積立金
- 19,130円
- 駐車場料金
- 10,500円
- 駐車場区分
- 空きあり
- 現況
- 空家
- 引渡/入居時期
- 相談
- 水回りリフォーム
- 2025年9月
- キッチン
- 浴室
- トイレ
- 洗面所
- 給湯器
- 内装リフォーム
- 2025年9月
- 壁、天井(クロス、塗装等)
- 床(フローリング等)
- 建具(室内ドア等)
- 小学校名
- 下永谷小学校 750m
- 中学校名
- 港南中学校 1200m
- 設備など
- ペット可
- 都市ガス
- システムキッチン
- 追焚機能
- ウォークインクローゼット
- オートロック
- エレベータあり
- バルコニー : あり
- フローリング : あり
- 宅配ボックスあり
- 駐輪場 : あり
- バイク置き場 : あり
- 床暖房
- テレビモニタつきインターホン
- 温水洗浄便座 : あり
- 浴室乾燥機
- 洗面所独立 : あり
- 防犯カメラあり
- 全居室収納 : あり
- クローゼット : あり
- シューズボックス : あり
- 登録日
- 2025年11月17日
- 更新日
- 2026年1月5日
113,957 円/月
頭金 0円 / ボーナス 0円 / 35年返済 / 金利0.5%
※計算結果はあくまでも参考です。借入を保証するものではありません。
無料の会員登録で「不動産購入前に読むべきマニュアル」をプレゼント。また、選択いただいた条件に最適な新規物件情報をメールでご紹介。さらに非公開物件もご覧いただけます。
無料会員登録※ マップは正確な場所を示すものではございません。多少の誤差を含みます。
この物件のお問い合わせは、以下のお好きな方法で行っていただけます!
あなたにおすすめの物件
ランドシティ上大岡ロイヤルヒルズ 2SLDK4,199万円
港南台パーク・ホームズ 3LDK3,899万円
シャルマンコーポ上大岡第2 3LDK4,099万円
エステ・スクエア港南百合ヶ丘 2SLDK3,490万円
クイーンズガーデンサウスコートレジデンス 4LDK4,680万円
藤和シティコープ上大岡 3LDK3,399万円
ライオンズマンション港南中央第2 2LDK2,580万円
ライオンズマンション上大岡第8 2LDK1,980万円
港南台パークホームズ 4LDK3,990万円
4,399万円
2,499万円
ロイヤルクレスト下永谷 3LDK3,150万円























































