- 中古戸建
- 5LDK
汲沢4丁目中古戸建
1階と2階に分かれた2世帯住宅!カースペース2台駐車可!
5,980万円
- 土地
- 476.18m²
- 建物
- 187.81m²
- 種別
- 軽量鉄骨2階建
- 場所
- 横浜市戸塚区汲沢四丁目
- 最寄り駅
- ブルーライン 戸塚駅 バス12分[中村三叉路] 徒歩4分
- 東海道本線 戸塚駅 バス12分[中村三叉路] 徒歩4分
- 築年
- 1988年 (昭和63年) 4月 築
- オススメ!
- 収納豊富
この物件のお問い合わせは、以下のお好きな方法で行っていただけます!
〜〜 物件のPoint 〜〜
■新規内外装リフォーム実施!
■陽当り・通風良好な南向き!
■リフォーム済、1階と2階に分かれた2世帯住宅!
■閑静な住宅街にあり、静かな住環境!
■カースペース2台駐車可(車種による)!
■■横浜スタイルの住宅ローンご提案■■
都市銀行、地方銀行、信用金庫、各ネット銀行の取り扱いご紹介が可能です♪
お客さまのご条件や希望条件等をお伺いしながら、スタッフが適切なご提案を致します!
※金利優遇幅は審査により異なります
- 物件番号
- 0000017294
- 総戸数・総区画数
- 1
- 空き物件数
- 1
- 地目
- 宅地
- 用途地域
- 第一種住居
- 都市計画
- 市街化区域
- 土地面積
計測方式 - 公簿
- 区画面積
- 476.18m²
- 私道負担面積
- 59m²
- 私道負担割合
(分子/分母) - 1/1
- セットバック
- なし
- 建ぺい率 /
容積率 - 60% / 200%
- 接道状況
- 二方 (除角地)
- 北西側 4.1m の私道に接道 [ 間口 21m ]
- 北東側 4.6m の公道に接道 [ 間口 21.7m ]
- 土地権利
- 所有権
- 国土法届出
- 不要
- 建物構造
- 軽量鉄骨
- 建物面積
- 187.81m²
- 建物階数
- 2階
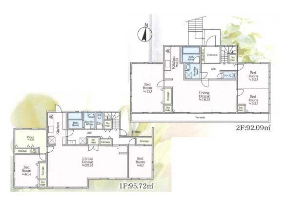
- 間取
- 5LDK
- LDK22.5帖
- 洋室6.5帖
- 洋室6帖
- LDK16.5帖
- 洋室12帖
- 洋室5.5帖
- 洋室5.5帖
- 駐車場区分
- 空きあり
- 駐車場空き台数
- 2
- 現況
- 空家
- 引渡/入居時期
- 即時
- 水回りリフォーム
- 2025年4月
- キッチン
- 浴室
- トイレ
- 洗面所
- 給排水管
- 内装リフォーム
- 2025年4月
- 壁、天井(クロス、塗装等)
- 床(フローリング等)
- 外装リフォーム
- 2025年4月
- 外壁
- 屋根
- 小学校名
- 汲沢小学校 750m
- 中学校名
- 汲沢中学校 1100m
- コンビニ距離
- 350m
- 設備など
- 公共水道
- 都市ガス
- 公共下水
- システムキッチン
- 洗濯機置き場 : 室内
- バルコニー : あり
- クローゼット : あり
- 登録日
- 2025年10月27日
- 更新日
- 2025年10月27日
155,232 円/月
頭金 0円 / ボーナス 0円 / 35年返済 / 金利0.5%
※計算結果はあくまでも参考です。借入を保証するものではありません。
無料の会員登録で「不動産購入前に読むべきマニュアル」をプレゼント。また、選択いただいた条件に最適な新規物件情報をメールでご紹介。さらに非公開物件もご覧いただけます。
無料会員登録この物件のお問い合わせは、以下のお好きな方法で行っていただけます!
あなたにおすすめの物件
2,499万円
3,999万円
2,699万円
2,899万円
汲沢6丁目中古戸建 3LDK3,199万円
名瀬町中古戸建 4LDK3,630万円
戸塚町中古戸建 5LDK3,150万円
汲沢2丁目中古戸建 4LDK16,000万円
影取町中古戸建 3LDK2,199万円
4,480万円
名瀬町中古戸建 4LDK2,699万円
原宿3丁目中古戸建 3LDK2,999万円

























































